LOFT SU TRE LIVELLI CON AREA ESTERNA AD USO ESCLUSIVO
In una delle vie più centrali e ricercate di Milano, a pochi passi da Corso Buenos Aires e dai giardini di Porta Venezia, proponiamo in vendita un loft unico nel suo genere, sviluppato su tre livelli .
L’immobile si distingue per la planimetria originale, l’altezza dei soffitti al piano terra e i dettagli architettonici che ne fanno uno spazio difficilmente replicabile: travi a vista, volta a botte in mattoni bianchi al piano interrato, pavimenti in gres porcellanato effetto legno e uno spazio esterno ad uso esclusivo con verde, vero lusso in zona centrale.
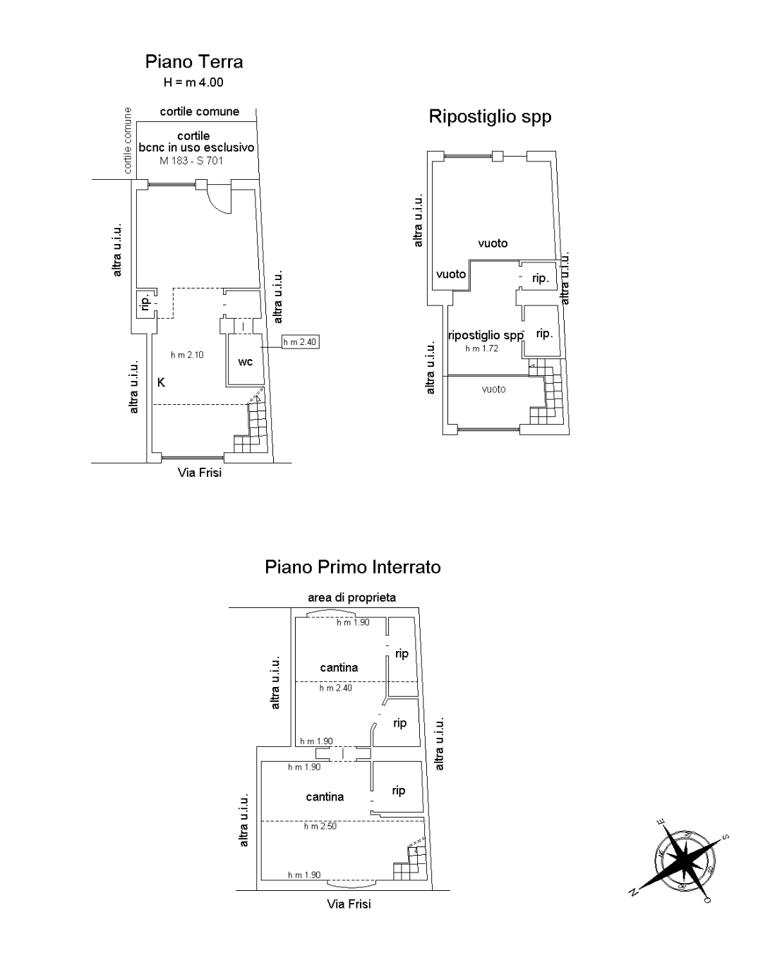
Piano terra : ampia zona giorno luminosa con soffitto alto e travi a vista, cucina completamente attrezzata con elettrodomestici in acciaio, bagno con box doccia, bidet e rivestimento in mosaico. Accesso diretto al giardino privato ad uso esclusivo ,soleggiato e ben curato, con spazio per un salottino esterno.
Primo piano soppalcato: mezzanino affacciato sulla zona giorno, adatto a camera da letto, studio o zona notte aggiuntiva, inoltre troviamo una lavanderia con lavatrice e cabina armadio. Travi a vista e pavimento in vetro permettono all’ambiente di godere di ottima luminosità.
Piano interrato: due ambienti spaziosi con caratteristica volta a botte in mattoni bianchi, due cabine armadio, ripostigli e locale lavanderia con lavatrice. Il piano è dotato di vespaio, sistema tecnico che garantisce protezione dall’umidità e piena agibilità degli spazi.
La posizione è eccellente per chi cerca qualità della vita urbana: Porta Venezia è tra i quartieri più vivaci e ben serviti di Milano, con ottima connessione ai mezzi pubblici, una ricca offerta commerciale e una forte domanda sia da utenza abitativa che da investitori.
L’immobile si presta sia come prima casa per chi ama spazi non convenzionali, sia come investimento per locazione a breve o medio termine.
Caratteristiche
- Accessibile ai disabili
- Accesso Carraio
- Accesso Pedonale Automatico
- Aeroporto di Milano Linate
- Agrumeto
- all inclusive
- Ambiente elegante
- Ambiente Luminoso
- Ampia metratura
- Ampia zona giorno
- Ampio ingresso
- Angolo cottura
- Antibagno
- Area barbecue
- Aria Condizionata
- Aria condizionata con pompa di calore
- Armadio a muro
- Arredato
- Ascensore
- ascensore privato
- Aspirazione centralizzata
- Attività commerciale
- Autorimessa
- Autorimessa tripla
- Autostrada
- B&B
- Bagno con doccia
- Bagno con vasca
- Bagno con vasca idromassaggio
- Bagno di Servizio
- Bagno finestrato
- Balcone
- Balconi
- Ballatoio
- Basculante automatica
- Bay Window
- Bed&Breakfast
- Bilocale
- Boiler
- Boiler a legna
- Bow window
- Box
- Buon investimento
- Cabina armadio
- Caldaia a condensazione
- Caldaia a gasolio
- Caldaia a legna
- Caldaia a metano
- Caldaia a pellet
- Caldaia per acqua calda
- Caldo e freddo
- Camera arredata
- Camera da Letto
- Camera mansardata
- Camera Matrimoniale
- Camera singola
- Camerata
- Cameretta
- Camino
- Camino a pellet
- Camino canalizzato
- Cancello automatico
- Cancello Elettrico
- Canna fumaria
- Cantina
- Casa del custode
- Casa di ringhiera
- Centro storico
- Cinque bagni
- Cinque camere
- Cisterna recupero acque piovane
- Condizionatore a pompa di calore
- Corrente elettrica
- Cortile condominiale
- Cortile Privato
- Cucina a vista
- Cucina Abitabile
- Cucina Arredata
- cucina con lavastoviglie
- Cucina in muratura
- Cucina semiabitabile
- Cucina separata
- Cucinotto
- Decori a parete
- Dependence
- Deposito
- Deposito scii
- Deumidificatori a soffitto
- Disimpegno
- Divano letto
- Doccia idromassaggio bagno turco
- Doppi Servizi
- Doppia camera
- Doppia esposizione
- Doppia vetrina
- Doppio accesso carraio
- Doppio ascensore
- Doppio bagno
- Doppio box auto
- Doppio ingresso
- Due box auto
- Due livelli
- Due livelli abitativi
- Due unità abitative
- Due unità indipendenti
- Elegante
- Esposizione esterna
- Fibra ottica
- Finiture di pregio
- Forno a Legna
- Forno elettrico
- Fronte strada
- Frutteto
- Giardino Condominiale
- Giardino Privato
- greche a soffitto
- Grès porcellanato
- Hall
- Illuminazione esterna
- Immobile a reddito
- Immobile ad investimento
- Immobile da ristrutturare
- Immobile di prestigio
- Impianto antincendio
- Impianto climatizzazione autonomo
- Impianto d'allarme
- Impianto di raffreddamento a pavimento
- Impianto Domotico
- Impianto fotovoltaico
- In costruzione
- Inferriate
- Infissi bicolore con effetto legno
- Infissi doppio vetro/alluminio
- Infissi doppio vetro/legno
- Infissi doppio vetro/metallo
- Infissi doppio vetro/PVC
- Infissi Nuovi
- Infissi originali
- Infissi triplo vetro/PVC
- Infissi vetro/alluminio
- Infissi Vetro/Legno
- Infissi vetro/metallo
- Ingresso automatico
- Ingresso condominiale
- Ingresso indipendente
- Ingresso sul retro
- Irrigazione Automatica
- Laghetto
- Lastrico solare comune
- Lastrico solare privato
- Lavanderia
- lavatrice
- Letto matrimoniale
- linea telefonica
- Locale caldaia
- Locale Laboratorio
- Locale Magazzino
- Locale Negozio
- Locale tecnico
- Loft
- Loggiato
- Luci dimmerabili
- Luminoso
- Macchinari di ultima generazione
- Mansarda
- Marmo di Verona
- Marmo portoghese
- Mezza giornata
- Milano Santa Giulia
- MM2
- MM3
- MM5
- Mobili su misura
- moderno
- Monolocale
- Moquette
- mosaico
- navigli
- Non Arredato
- Nove vani
- Nuova costruzione
- Open plan bathroom
- Open-space
- Orto
- Palazzina Liberty
- palazzo degli anni '70
- Parco
- Parco Trapezio
- Particolari architettonici
- Parzialmente Arredato
- Passo Carraio
- Patio estivo
- Pavimenti in legno di afromosia
- Pavimento in cotto
- Pavimento in parquet
- Pavimento in Pietra Leccese
- Pavimento in rovere
- Piano ad induzione
- Piano Alto
- Piano ammezzato
- Piano Cantinato
- Piano Interrato
- Piano mansardato
- Piano Rialzato
- Piano seminterrato
- Piano Terreno
- Piastrelle dipinte a mano
- Piscina
- Piscina condominiale
- Porta Blindata
- Porta in vetro decorato
- Porta ticinese
- Portico
- Portineria
- Portineria H24
- Portone di ingresso automatico
- Possibile quadrilocale
- possibile trilocale
- Possibilità di stufa a pellet
- Posti Auto Riservati
- Posto Auto
- Posto Auto Coperto
- Posto Auto Privato
- Posto bici
- Posto bici e moto
- Predisposizione cancello elettrico
- Predisposizione impianto di climatizzazione
- Predisposizione per impianto d'allarme
- Predisposizione videocitofono
- Primo Piano
- Pulizie
- Quadrilocale
- Quatto bagni
- Quattro camere
- Quattro servizi
- Quattro vani
- Quinto Piano
- Radiatori
- Residence
- Ripostiglio
- Riscaldamento a pavimento
- Riscaldamento ad aria
- Riscaldamento Autonomo
- Riscaldamento Centralizzato
- Riscaldamento con Termovalvole
- Riscaldamento Pavimento a Zone
- Riscaldamento Semiautonomo
- Ristrutturato
- rosone decorativo
- Sala Congressi
- Sala d'attesa
- Sala da pranzo
- Sala Fitness condominiale
- Salone artigianale
- Saracinesche automatiche
- Sauna
- Scala a chiocciola
- Scala di design
- Secondo piano
- Semaforo
- Sensore per l'accensione della luce
- Serranda automatica
- Sette camere
- Settecento
- Signorile
- Sky
- Soffitta
- Soffitto a volta
- Soggiorno doppio
- Soggiorno Luminoso
- Soggiorno singolo
- Soggiorno triplo
- Solaio
- Solarium
- Soppalco
- Sottotetto
- Sottotetto mansardabile
- Spogliatoio
- Stabile civile
- Stabile d'epoca
- Stabile restaurato
- Stabile signorile
- Studio
- Stufa a gas metano
- Stufa a legna
- Stufa a pellet
- Suite
- Tapparelle centralizzate e automatizzate
- Tapparelle elettriche
- Tavernetta
- Termocamino
- Termoconvettori
- Termostufa a pellet
- Terrazzini
- Terrazzino
- Terrazzo
- Terrazzo coperto
- Terreno agricolo
- Terreno edificabile
- Terreno Privato
- Terzo piano
- Tettoia
- Torretta
- Travi a vista
- Tre bagni
- Tre camere
- Tre livelli
- Tre livelli abitativi
- Tre unità abitative
- Tre vani
- Trilocale
- Tripla camera
- Tripla esposizione
- Tripli servizi
- triplo ascensore
- Triplo ingresso
- Uffici
- Ufficio
- Uliveto
- Ultimo Piano
- Vasca da Bagno
- Vasca Idromassaggio
- Ventilconvettori
- Veranda
- Vetrina
- Vetrina fronte strada
- Vetrine Fronte Strada
- Videocitofono
- Videosorveglianza
- Villa a schiera
- Villa signorile
- Vista Mare
- Vista montagne
- Vista Panoramica
- Wi-fi
- Zanzariere
- Zona ben collegata
- Zona centrale
- Zona commerciale
- Zona di passaggio
- Zona giorno
- Zona Giorno Living
- Zona giorno/notte
- Zona industriale
- Zona lavanderia
- zona lavatrice
- Zona notte
- Zona residenziale
- Zona riqualificata
- zona sant'Ambrogio
- Zona tranquilla
- Zona universitaria
Altri dettagli
Piano
PLANIMETRIA
Posizione
Via Paolo Frisi, 6, Milano, MI, Italia