QUADRILOCALE CON GIARDINO PRIVATO SU PIÙ LIVELLI
In Via Rosolino Pilo, nel cuore di Porta Venezia, proponiamo in vendita quadrilocale di 175 mq disposto su tre livelli, in uno stabile con servizio di portineria.
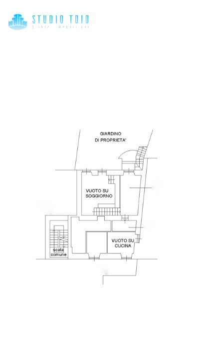
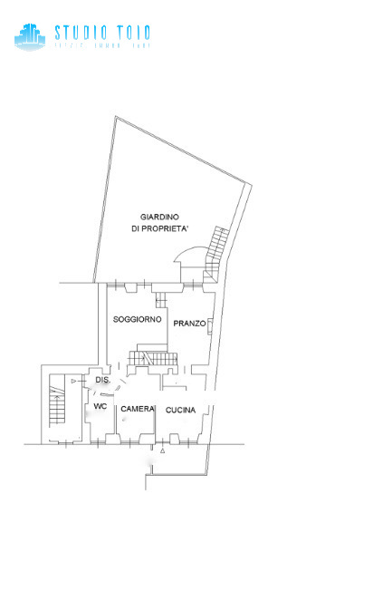
L’immobile si trova all’interno di un contesto residenziale, tranquillo e ben servito, gode di un grazioso giardino privato, ideale per chi cerca uno spazio esterno da vivere a pieno in tutti i periodi dell’anno.
La zona risulta ben collegata grazie alla fermata della metropolitana M1 Porta Venezia e passante ferroviario, metropolitana M4 raggiungibile a piedi, oltre che a mezzi di superficie (linee 19, 60, 5, 33) inoltre il centro è raggiungibile a piedi con circa 15 minuti di camminata.
L’appartamento si presenta ristrutturata ed è così composta: ingresso su cucina abitabile, ampio soggiorno, camera da letto e bagno finestrato con box doccia.
Proseguendo al piano superiore troviamo la camera matrimoniale con bagno padronale completo di doccia.
Infine al piano inferiore abbiamo una zona studio e un terzo bagno completo di vasca.
Caratteristiche
- Accessibile ai disabili
- Accesso Carraio
- Accesso Pedonale Automatico
- Aeroporto di Milano Linate
- Agrumeto
- all inclusive
- Ambiente elegante
- Ambiente Luminoso
- Ampia metratura
- Ampia zona giorno
- Ampio ingresso
- Angolo cottura
- Antibagno
- Area barbecue
- Aria Condizionata
- Aria condizionata con pompa di calore
- Armadio a muro
- Arredato
- Ascensore
- ascensore privato
- Aspirazione centralizzata
- Attività commerciale
- Autorimessa
- Autorimessa tripla
- Autostrada
- B&B
- Bagno con doccia
- Bagno con vasca
- Bagno con vasca idromassaggio
- Bagno di Servizio
- Bagno finestrato
- Balcone
- Balconi
- Ballatoio
- Basculante automatica
- Bay Window
- Bed&Breakfast
- Bilocale
- Boiler
- Boiler a legna
- Bow window
- Box
- Buon investimento
- Cabina armadio
- Caldaia a condensazione
- Caldaia a gasolio
- Caldaia a legna
- Caldaia a metano
- Caldaia a pellet
- Caldaia per acqua calda
- Caldo e freddo
- Camera arredata
- Camera da Letto
- Camera mansardata
- Camera Matrimoniale
- Camera singola
- Camerata
- Cameretta
- Camino
- Camino a pellet
- Camino canalizzato
- Cancello automatico
- Cancello Elettrico
- Canna fumaria
- Cantina
- Casa del custode
- Casa di ringhiera
- Centro storico
- Cinque bagni
- Cinque camere
- Cisterna recupero acque piovane
- Condizionatore a pompa di calore
- Corrente elettrica
- Cortile condominiale
- Cortile Privato
- Cucina a vista
- Cucina Abitabile
- Cucina Arredata
- cucina con lavastoviglie
- Cucina in muratura
- Cucina semiabitabile
- Cucina separata
- Cucinotto
- Decori a parete
- Dependence
- Deposito
- Deposito scii
- Deumidificatori a soffitto
- Disimpegno
- Divano letto
- Doccia idromassaggio bagno turco
- Doppi Servizi
- Doppia camera
- Doppia esposizione
- Doppia vetrina
- Doppio accesso carraio
- Doppio ascensore
- Doppio bagno
- Doppio box auto
- Doppio ingresso
- Due box auto
- Due livelli
- Due livelli abitativi
- Due unità abitative
- Due unità indipendenti
- Elegante
- Esposizione esterna
- Fibra ottica
- Finiture di pregio
- Forno a Legna
- Forno elettrico
- Fronte strada
- Frutteto
- Giardino Condominiale
- Giardino Privato
- greche a soffitto
- Grès porcellanato
- Hall
- Illuminazione esterna
- Immobile a reddito
- Immobile ad investimento
- Immobile da ristrutturare
- Immobile di prestigio
- Impianto antincendio
- Impianto climatizzazione autonomo
- Impianto d'allarme
- Impianto di raffreddamento a pavimento
- Impianto Domotico
- Impianto fotovoltaico
- In costruzione
- Inferriate
- Infissi bicolore con effetto legno
- Infissi doppio vetro/alluminio
- Infissi doppio vetro/legno
- Infissi doppio vetro/metallo
- Infissi doppio vetro/PVC
- Infissi Nuovi
- Infissi originali
- Infissi triplo vetro/PVC
- Infissi vetro/alluminio
- Infissi Vetro/Legno
- Infissi vetro/metallo
- Ingresso automatico
- Ingresso condominiale
- Ingresso indipendente
- Ingresso sul retro
- Irrigazione Automatica
- Laghetto
- Lastrico solare comune
- Lastrico solare privato
- Lavanderia
- lavatrice
- Letto matrimoniale
- linea telefonica
- Locale caldaia
- Locale Laboratorio
- Locale Magazzino
- Locale Negozio
- Locale tecnico
- Loft
- Loggiato
- Luci dimmerabili
- Luminoso
- Macchinari di ultima generazione
- Mansarda
- Marmo di Verona
- Marmo portoghese
- Mezza giornata
- Milano Santa Giulia
- MM2
- MM3
- MM5
- Mobili su misura
- moderno
- Monolocale
- Moquette
- mosaico
- navigli
- Non Arredato
- Nove vani
- Nuova costruzione
- Open plan bathroom
- Open-space
- Orto
- Palazzina Liberty
- palazzo degli anni '70
- Parco
- Parco Trapezio
- Particolari architettonici
- Parzialmente Arredato
- Passo Carraio
- Patio estivo
- Pavimenti in legno di afromosia
- Pavimento in cotto
- Pavimento in parquet
- Pavimento in Pietra Leccese
- Pavimento in rovere
- Piano ad induzione
- Piano Alto
- Piano ammezzato
- Piano Cantinato
- Piano Interrato
- Piano mansardato
- Piano Rialzato
- Piano seminterrato
- Piano Terreno
- Piastrelle dipinte a mano
- Piscina
- Piscina condominiale
- Porta Blindata
- Porta in vetro decorato
- Porta ticinese
- Portico
- Portineria
- Portineria H24
- Portone di ingresso automatico
- Possibile quadrilocale
- possibile trilocale
- Possibilità di stufa a pellet
- Posti Auto Riservati
- Posto Auto
- Posto Auto Coperto
- Posto Auto Privato
- Posto bici
- Posto bici e moto
- Predisposizione cancello elettrico
- Predisposizione impianto di climatizzazione
- Predisposizione per impianto d'allarme
- Predisposizione videocitofono
- Primo Piano
- Pulizie
- Quadrilocale
- Quatto bagni
- Quattro camere
- Quattro servizi
- Quattro vani
- Quinto Piano
- Radiatori
- Residence
- Ripostiglio
- Riscaldamento a pavimento
- Riscaldamento ad aria
- Riscaldamento Autonomo
- Riscaldamento Centralizzato
- Riscaldamento con Termovalvole
- Riscaldamento Pavimento a Zone
- Riscaldamento Semiautonomo
- Ristrutturato
- rosone decorativo
- Sala Congressi
- Sala d'attesa
- Sala da pranzo
- Sala Fitness condominiale
- Salone artigianale
- Saracinesche automatiche
- Sauna
- Scala a chiocciola
- Scala di design
- Secondo piano
- Semaforo
- Sensore per l'accensione della luce
- Serranda automatica
- Sette camere
- Settecento
- Signorile
- Sky
- Soffitta
- Soffitto a volta
- Soggiorno doppio
- Soggiorno Luminoso
- Soggiorno singolo
- Soggiorno triplo
- Solaio
- Solarium
- Soppalco
- Sottotetto
- Sottotetto mansardabile
- Spogliatoio
- Stabile civile
- Stabile d'epoca
- Stabile restaurato
- Stabile signorile
- Studio
- Stufa a gas metano
- Stufa a legna
- Stufa a pellet
- Suite
- Tapparelle centralizzate e automatizzate
- Tapparelle elettriche
- Tavernetta
- Termocamino
- Termoconvettori
- Termostufa a pellet
- Terrazzini
- Terrazzino
- Terrazzo
- Terrazzo coperto
- Terreno agricolo
- Terreno edificabile
- Terreno Privato
- Terzo piano
- Tettoia
- Torretta
- Travi a vista
- Tre bagni
- Tre camere
- Tre livelli
- Tre livelli abitativi
- Tre unità abitative
- Tre vani
- Trilocale
- Tripla camera
- Tripla esposizione
- Tripli servizi
- triplo ascensore
- Triplo ingresso
- Uffici
- Ufficio
- Uliveto
- Ultimo Piano
- Vasca da Bagno
- Vasca Idromassaggio
- Ventilconvettori
- Veranda
- Vetrina
- Vetrina fronte strada
- Vetrine Fronte Strada
- Videocitofono
- Videosorveglianza
- Villa a schiera
- Villa signorile
- Vista Mare
- Vista montagne
- Vista Panoramica
- Wi-fi
- Zanzariere
- Zona ben collegata
- Zona centrale
- Zona commerciale
- Zona di passaggio
- Zona giorno
- Zona Giorno Living
- Zona giorno/notte
- Zona industriale
- Zona lavanderia
- zona lavatrice
- Zona notte
- Zona residenziale
- Zona riqualificata
- zona sant'Ambrogio
- Zona tranquilla
- Zona universitaria
Altri dettagli
Piano
Piano S
Piano Terra
Piano Primo
Posizione
Via Rosolino Pilo, 12, Milano, MI, Italia